+17
La Chapelle-Saint-Sauveur (71310)

Maison 8 pièce(s) 4 chambre(s) 145 m²

1
4202 m²
245 000 €
Réf 20250301

Située à 10 minutes de Saint Germain Du Bois et à 5 minutes de Pierre De Bresse, cette grande maison familiale vous offre de nombreux atouts pour accueillir toute votre famille.

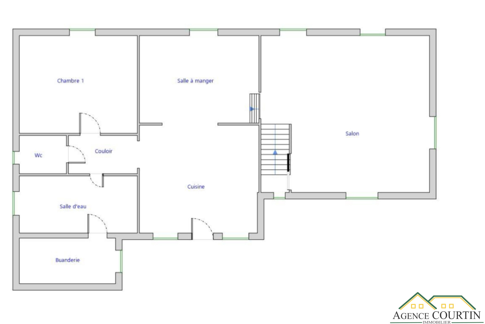
Au rez-de-chaussée, vous trouverez :

  • Une cuisine aménagée, ouverte sur un coin repas avec poêle à bois, créant une ambiance chaleureuse.
  • Un grand séjour très lumineux, avec du carrelage typique, idéal pour recevoir.
  • Une chambre avec un grand dressing mural.
  • Une salle de bain + douche.
  • Un WC indépendant.
  • Une buanderie avec un accès direct à l'extérieur.

À l'étage, un dégagement dessert :

  • Trois chambres spacieuses.
  • Une grande salle de jeux, qui peut également faire office de chambre supplémentaire selon vos besoins.

Travaux récents : toiture, assainissement, électricité, isolation et chauffage, aucun travaux à prévoir.

Une Grande dépendance de 200 m2 environ avec ancienne sellerie et box avec abreuvoirs (idéal pour animaux) grange (possibilité de garer un camping-car) atelier et autres + poulailler

Puits

Un petit studio de 40 m² à réhabiliter est également présent sur la propriété (photos disponibles sur demande)

Le tout est situé sur un terrain clos de 4202 m², offrant un espace extérieur agréable et sécurisé, idéal pour une vie de famille épanouie.

Les informations sur les risques auxquels ce bien est exposé sont disponibles sur le site Géorisques : www.georisques.gouv.fr

Bilan énergétique

Diagnostics énergetiques
Consommation énergétique
A B C D E F G
Emission de gaz à effet de serre
A B C D E F G

Montant estimé des dépenses annuelles d'énergie de ce logement pour un usage standard est compris entre 1 620 € et 2 250 € . 2022 étant l'année de référence des prix de l'énergie utilisés pour établir cette estimation.

A propos de ce bien Caractéristiques de ce bien
  • Surface 145 m²
  • terrain 4 202 m²
  • 4 chambre(s)
  • 1 salle(s) de bain
  • Chauffage individuel : autre (autre)
  • terrasse

Financier

Informations financières
Prix de vente 245 000 € Les honoraires d'agence seront intégralement à la charge du vendeur
Taxe foncière annuelle 651 €

Autour du bien

Découvrez le quartier

Simulation

Calcul des mensualités
* Champs obligatoires
Agence Courtin Immobilier Agence