+12
Frangy-en-Bresse (71330)

Maison 7 pièce(s) 4 chambre(s) 169 m²

1
41883 m²
1
Réf 20250404

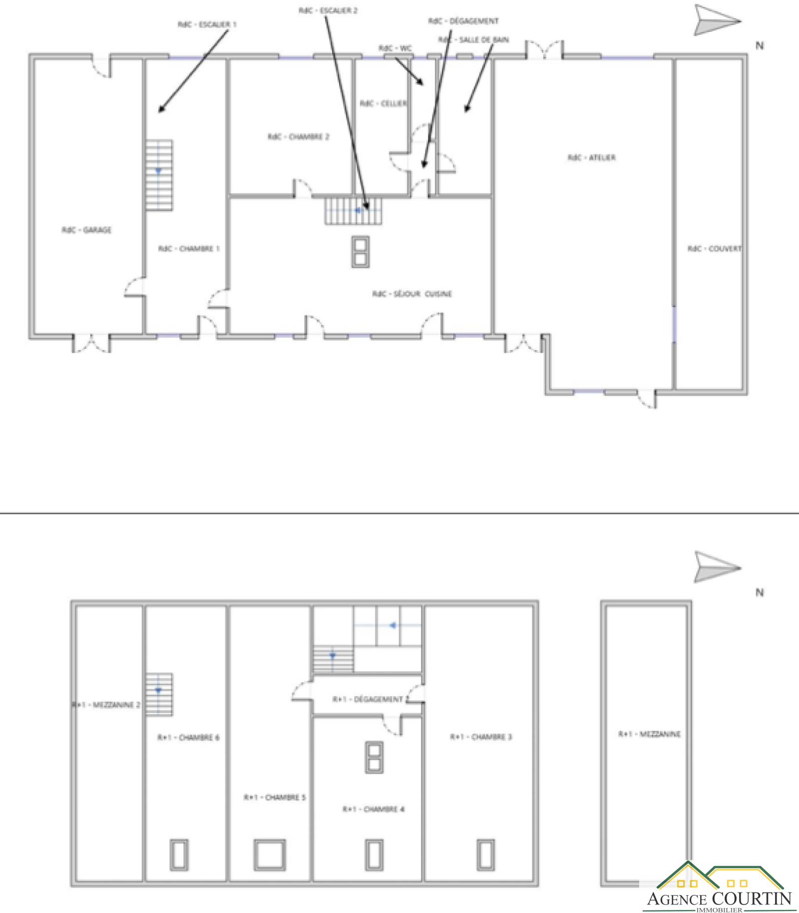
À seulement 5 minutes de Saint-Germain-du-Bois et 10 minutes de Bletterans, découvrez cette authentique maison en briques et colombagesd’environ 169 habitables, à rénover entièrement, offrant un très beau potentiel sur un terrain total de 41 883 (dont 10 859 attenants à la maison et 31 024 situés à environ 500 m).

Description du bien :

Au rez-de-chaussée :

  • Une cuisine ouverte sur séjour avec insert 

  • Une chambre,

  • Une salle d’eau à réhabiliter,

  • Un cellier,

  • Une grande pièce de vie à aménager selon vos envies (salon, salle de jeux, atelier...),

À l’étage :

  • Trois chambres

  • Une pièce supplémentaire pouvant être transformée en bureau, salle de bains ou autre

Dépendances :

  • Un garage

  • Un grand atelier,

  • Un abri spacieux,

  • Un ancien four à pain (à réhabiliter),

  • Deux caves.

Le terrain est arboré + pré et idéal pour les amoureux de la nature, les porteurs de projets agricoles ou d’accueil à la campagne.

Informations complémentaires :

  • Des aides aux travaux de rénovation énergétique sont envisageables (plus d’infos en agence, sous conditions),

  • Bien à fort potentiel, à visiter rapidement !


Les informations sur les risques auxquels ce bien est exposé sont disponibles sur le site Géorisques

Bilan énergétique

Diagnostics énergetiques
Consommation énergétique
A B C D E F G
Emission de gaz à effet de serre
A B C D E F G

Montant estimé des dépenses annuelles d'énergie de ce logement pour un usage standard est compris entre 3 170 € et 4 350 € . 2022 étant l'année de référence des prix de l'énergie utilisés pour établir cette estimation.

A propos de ce bien Caractéristiques de ce bien
  • Surface 169 m²
  • terrain 4,19 ha
  • 4 chambre(s)
  • 1 salle(s) d'eau
  • construit en 1780
  • Chauffage individuel : cheminée (bois)
  • 1 garage(s)
  • exposition Est-Ouest
  • 1 niveau(x)

Financier

Informations financières
Prix net vendeur 101 200 €
Taxe foncière annuelle 486 €
Taxe d'habitation 340 €

Autour du bien

Découvrez le quartier

Simulation

Calcul des mensualités
* Champs obligatoires
Agence Courtin Immobilier Agence